通過對本次實驗的操作、記錄、數據處理和曲線的繪制,了解離心泵裝置的組成;掌握離心泵的工作原理;掌握離心泵的特性;了解離心泵的串、并聯特性和汽蝕的原因。達到驗證和鞏固課堂教學知識、培養動力能力的目的。
二、實驗內容
1.離心泵性能測定實驗;
2.離心泵啟停和串并聯實驗;
3.離心泵的汽蝕實驗。
三、實驗裝置
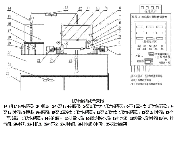
實驗裝置由兩臺離心泵綜合試驗臺和兩臺計算機組成。試驗臺的組成及設備如下圖所示:

離心泵參數:
型號:FS103#-2 最大揚程: 11 m
最大流量:4.5
泵進口管徑d: 32 mm電機額定功率:0.55 KW 電機額定轉速:2840 轉/分
文丘里管流量系數K =0.98
本實驗臺的電機1上安裝了一個轉速傳感器,經計算后在電子顯示屏上讀出的是電機1的電功率,泵1的輸入功率要經換算后求得;而泵1、泵2的壓力表、真空表的讀數在電子顯示屏上可直接讀出;而電子顯示屏上讀出的文丘里流量計的壓差,其流量要經計算而得;電子顯示屏上的最上方可讀出泵的轉速。
四、實驗基本原理
本實驗臺的水泵1(用以測泵的特性及串并聯實驗)、水泵2(用以測泵的汽蝕余量和串并聯實驗)。
1.特性實驗
實驗時,利用各閥門的開、關和調節,形成泵1的單臺泵工作回路,在不同流量下,測定一組相應的壓力表、真空表、電機1的電功率和文丘里流量計的壓差讀數(或利用計量水箱和秒表來計量、計算),以及電機的轉速n;經計算后即可得出一組泵的流量Q、揚程H、輸入功率N、離心泵的效率η等數據,用這些數據即可繪出泵的H-Q,N-Q和η-Q等特性曲線。
2.汽蝕實驗
進行泵的汽蝕實驗時,利用相應閥門的開、閉和調節,形成泵2的單泵工作回路,并使水箱成為封閉的容器,水泵抽水時,使水箱由于水的抽出而產生真空,從而使泵的進口壓力減少,直到發生汽蝕,測出泵的汽蝕余量ΔH。
3.泵的串聯或并聯實驗
利用相應閥門的開、閉,組成泵1和泵2的串聯或并聯回路,從而測定泵串聯和并聯時的運行特性。
五、實驗基本步驟
1.泵的特性實驗
(1)試驗前準備
①將水箱注滿水(其水位應至少高出水箱底部的兩個進水孔口,此時離心泵內也已灌注滿水)。
②關閉閥門3、9、12,打開閥門7。
(2)進行試驗
①接通電源,打開電源開關;
②按K3啟動離心泵泵1。泵運轉后,即打開閥門3,再關閉閥門7,此時,輸入、輸出流量均為0,為空載狀態。讀出泵1壓力表讀數p2()MPa,泵1真空表讀數p1()KPa,電機的電功率N()W,文丘里流量計的壓差讀數△p()KPa,電機的轉速n()轉/分。
③打開閥門7至一定開度,水泵開始給水,再測讀出泵1壓力表讀數p2()MPa,泵1真空表讀數p1()KPa,文丘里流量計壓差△p()Kpa,電機的電功率N()W,電機的轉速n()轉/分。
④逐步開大閥門4,改變泵的流量(一般改變8-10次),在每一流量下,測量并記錄上述試驗數據。
這樣,可以測得相應于不同流量下的試驗數據,按下列計算公式進行相關的計算后(計算時一定要注意單位換算),將實驗數據和計算結果填入實驗數據表,計算得到不同的
值和其相應泵輸入功率
值,泵1的效率η1,在H—Q、N—Q、η—Q坐標系中得到相應測點,將這些點光滑地連接起來,從而就可以繪出泵的H—Q曲線、N—Q曲線、η—Q曲線等特性曲線。(3)計算公式
①流量Q1
對于文丘里測流量,按以下公式計算:

其中:
表示體積流量,
;
文丘里流量計的流量系數,按1.15算;
文丘里管大徑,0.042
;
文丘里管小徑,0.035
;
文丘里管兩端壓差,
;
水的密度,10000
值也可用計量水箱和秒表測定;②楊程

值可由下式計算:
式中:
—揚程[m]
—壓力表讀數,[Mpa] ,換算成水柱高,[m]
—真空表讀數,[Mpa] ,換算成水柱高,[m]
—壓力表至真空表接出點之間的高度,[m]
—水的重度,等于密度和重力加速度的乘積。[
]
—泵進口流速,一般進口和出口管徑相同,
所以
③泵的輸入功率


式中:N——電機的電功率, [w]
——電機的效率,取
,④泵的效率
任取一個
值可以得出相應的
和
值,由此可得該流量下得相應效率
值:
2.水泵的汽蝕試驗
(1)試驗前的準備
①將水箱注滿水,直至排氣閥19溢出水為止。關閉排氣閥19。
②向水泵2充水,此時,應關閉閥門4。
③關閉閥門4,7,9,18,24,打開閥門12,17。
(2)進行試驗
①啟動水泵2。
②調節閥門12,調至某一流量
。③在此流量下,將閥門17由開啟向關閉方向逐步調節,使水箱內的真空度逐步增大,每調節一次,同時測讀流量計讀數、真空表10的讀數Hs和壓力表11讀數H(揚程)。繼續調節閥門17,直至壓力表11的指針發生劇烈顫動或急劇下降為止(即發生汽蝕)。這樣,可以讀出一組試驗數據,并確定在此流量下的汽蝕余量Δh。
(4)將閥門12調至另一開度,重復上述步驟,測定此流量Q2下的汽蝕余量Δhc。
如此,進行3-5個流量下的試驗,測得3-5組試驗數據,即可測定泵的汽蝕特性曲線。
3.兩臺泵的串聯運行試驗
(1)在相同流量下,測出單臺泵運行時的泵1和泵2的揚程H1和H2。其試驗步驟和方法可參照泵的特性試驗方法。
(2)在與單臺泵運行時的相同流量下,測出兩臺泵的串聯時的揚程 H串可以得出H串= H1+ H2。具體步驟如下:
①打開閥門9,18;關閉閥門4,7,12,17,24。
②接通電源,首先啟動泵2,運行正常后,打開串聯閥門4,再啟動泵1,待運行正常后,然后打開閥門7。
③調節閥門7,使流量指示與單臺泵運行時相同。
④在壓力表5和11上進行揚程H串和H2讀值。
4.兩臺泵的并聯運行試驗
(1)在相同的揚程下,測出單臺水泵進行時泵1和泵2的流量Q1和Q2。
(2)在與單臺泵運行時的相同的揚程下,測出兩臺泵并聯時的流量Q并,得出:Q并 = Q1+ Q2。具體步驟如下:
①開閥門4,25,17;關閉閥門7,9,12,18。
②啟動水泵1和水泵2,運行正常后,打開閥門7,12。
③調節閥門7,12,使壓力表5,11的揚程一致,并與單臺泵運行使相同。
④用流量計或計量水箱進行流量Q并測量。
[注]1.上述泵的串、并聯運行試驗,可以進行多個流量下的串聯運行試驗和多個揚程下的并聯運行試驗,以觀察和驗證泵的串、并聯運行時的基本規律。
2.泵的串、并聯試驗也可以參照離心泵的啟、停及串并聯實驗臺實驗指導書介紹的方法進行試驗,給出單泵運行時的Q-H特性曲線及雙臺泵串并聯運行時的Q-H特性曲線,以觀察和驗證泵的串、并聯運行時的基本規律。
六.實驗記錄與數據處理要求
實驗數據可記錄在如下的表格中:
| No | M(Mpa) | V(Mpa) | G(Kg) | n(轉/分) | Q(Kg/s) | 備注 |
| W(立方)t(秒) | ||||||
| 1 | ||||||
| 2 | ||||||
| 3 | ||||||
| 4 | ||||||
| 5 | ||||||
| 6 | ||||||




根據測試數據,在坐標系中點出測試點,最后光滑地繪制出H—Q,N—Q和η—Q曲線。(可以在一張圖上繪出)。
η

七、實驗中的注意事項
在接電運轉前,必須做好下列準備工作:
1.仔細檢查各閥門、接頭和表頭等有無松動,如有松動,應加以緊固;
2.用橡膠管將文丘里的測壓口與壓差計相連接;
3.將測力矩力臂用限位裝置鎖住;
4.將水箱注滿水,并使泵內全部充滿水。完成上述安裝工作以后,即可接電試運轉。啟動水泵,觀察有無漏水現象,如漏水,應設法處理。
5.試驗臺應很好的接地,以保安全!


