
一、模型概述
默納克高仿真電梯模型采用先進的仿真技術,精確模擬真實電梯的運行機制和控制系統。模型通常包括電梯轎廂、軌道、控制系統、安全裝置等關鍵部分,以便用戶能夠全面了解電梯的工作原理和操作過程。
二、主要功能
1. 真實還原電梯運行過程:模型能夠模擬電梯的啟動、加速、勻速運行、減速和停止等全過程,使用戶能夠真實感受電梯的運行狀態。
2. 控制系統仿真:模型配備了仿真控制系統,用戶可以學習如何操作電梯的控制面板,包括選擇樓層、開關門等基本操作。
3. 安全裝置模擬:模型中的安全裝置,如防墜落裝置、緊急停止按鈕等,也進行了高度仿真,以便用戶了解這些安全設施的工作原理和重要性。
三、應用領域
1. 教學培訓:默納克高仿真電梯模型是電梯維修、安裝和操作等職業培訓的理想教具,能夠幫助學生直觀地了解電梯的結構和工作原理,提高實操技能。
2. 展示推廣:在電梯制造企業的展廳或展會上,這種模型可以作為產品展示的工具,向客戶展示企業的技術和產品優勢。
3. 科研實驗:對于電梯領域的科研人員來說,高仿真電梯模型可以用于進行各種實驗和研究,以推動電梯技術的創新和發展。
四、使用與維護
使用默納克高仿真電梯模型時,應遵循相關操作規程和安全注意事項,確保操作過程的安全和穩定。同時,定期對模型進行維護和保養,以延長其使用壽命和保持其良好的工作狀態。
總之,默納克高仿真電梯模型憑借其真實還原電梯運行機制和控制系統的特點,在電梯教學、展示和科研領域發揮著重要作用。通過使用該模型,用戶可以更深入地了解電梯的工作原理和操作過程,提高專業技能水平。
DB-50DT 默納克高仿真電梯模型
一、概述
默納克高仿真電梯模型是一種專門用于教學和培訓的工具,它模擬了真實電梯的運行和工作原理。這種模型通常用于大中專院校、技校、職業學校以及電梯維修和物業管理部門,以幫助學員更好地理解和掌握電梯相關的知識和技能。
電梯教學模型通常包括電梯的基本結構、電氣系統、控制系統以及安全裝置等部分。通過模型,學員可以直觀地了解電梯的組成部分和工作原理,從而加深對電梯運行和維護的理解。
在教學過程中,電梯教學模型還可以用于模擬電梯的各種運行狀態和故障情況,幫助學員掌握電梯故障排查和維修的技能。同時,模型還可以用于演示電梯的安全操作規程和緊急處理措施,提高學員的安全意識和應急處理能力。
總之,電梯教學模型是一種非常實用的教學工具,它可以有效地提高學員對電梯相關知識的理解和掌握程度,為未來的工作打下堅實的基礎。



1) 電梯模型尺寸(整體):深度850;寬度900;高度2200;
2) 主要材料:框架為鋁型材,兩個前面板為兩凹槽,橫梁為三凹槽,40或50的鋁合金灰色材料;轎廂、轎門、廳門、廳門門框為不銹鋼,表面拉絲處理;
3) 電梯前面板為灰色噴砂金屬材質,顏色與框架同色;每層廳門:側面液晶外呼按鈕,第三層上方有一個橫顯;
4) 操縱箱要求見五.8;
5) 系統控制柜單獨安裝尺寸:高*寬*深小于1200*300*250mm;
6) 兩側面三層共6塊為智能電控調光玻璃,每層電控玻璃可以獨立控制,即需要:三個控制器,六塊玻璃,電梯在某層平層停梯時,某層玻璃為透明顯示,其他層為磨砂模式;后面板為透明亞克力;
7) 轎廂底部外側周圍有led燈帶,上電常亮,在側面可見電梯位置;
8) 電梯轎廂內有暖色燈,上電常亮。
9) 井道內有每層隔磁板,轎廂預留凹型光電開關位置,我方加裝一個這樣的開關,檢測平層信號。
10) 轎廂門處,我方可以安裝一對感應開關門的傳感器;
11) 轎廂頂部預留安裝我方物聯網設備。
12) 井道內所有材料為鋁合金、不銹鋼等金屬材料,不使用pvc、亞克力等材料。
13) 控制系統:默納克3000電梯控制系統。
三、主要參考參數:
1.輸入電源:AC220V±5% 50Hz
2.額定電流:2.5A
3.環境溫度:-5℃~40℃
4.相對濕度:≤90%(25℃)
5.框架外尺寸:900×850×2200mm
6.轎廂內尺寸:500×450×250mm
7.開門尺寸:350×240mm
8.變 頻 器:0.75KW
9.控 制 器:一體機
10.操作箱電源:24VDC
11.安全回路電源:24VDC
12.門鎖回路電源:24VDC
13.設備重量:約500Kg,底板部有四個帶鎖止的運載輪子
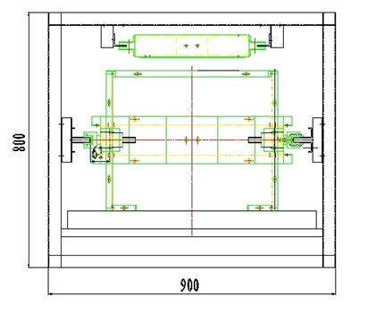
四、電梯結構圖說明:

五、設備結構
1.井道柜架:相當于電梯附著的建筑物,為電梯提供支承,固定導軌,是鋁合金結構。
2.曳引機:位于柜架頂部,是電梯的動力裝置。安裝在兩條承重梁上,他主要由以下部分組成:
(1)電動機:鼠籠式兩相感應電動機,采用變頻變壓(VVVF)驅動方式,電梯起動時,變頻器使定子電流頻率從極低頻率開始,按控制要求上升到額定頻率,減速時,使轉速相應從額定頻率開始平滑地下降到零,實現電梯平層,保證了電梯運行平穩,模擬真實電梯良好的合適感。
(2)制動器:只在電梯通電運轉時間松閘,當電梯停止時制動并保持轎廂位置不變,工作電壓AC220V。
(3)控制器:采用蝸輪桿減速器,具有高密度、高效率、低噪音的特點。
(4)曳引輪:繩槽為半圓槽,提供鋼絲繩與繩輪之間的磨擦力。
3.控制屏(柜):
(1)變頻器:根據系統給出的指令,對電機的電源頻率、電壓進行調制,使電機平衡。
(2)主控制器:控制電梯的運行狀態,根據內選信號,對電梯的位置進行邏輯判斷,然后給出運行指令,使電梯實現應答呼梯信號,順向堆停,反向保留信號,自動關門等功能。
(3)安全及門鎖回路:由繼電器回路組成,急停,門鎖開關的通斷決定安全及門鎖回路的正常與否,以使控制系統判定電梯是否處于安全狀態。
(4)抱閘回路:抱閘繼電器電路,輸出及狀態反饋。
4.導 軌:分別有轎廂導軌和對重導軌保證轎廂及對重作垂直運動。
5.轎 廂:由曳引鋼絲繩懸掛,通過曳引機另一端連接對重,在導軌上運行,轎廂裝備自動化,門上裝有連鎖開關,當門關閉后電梯才能運行,門上還有光幕,當關門過程中碰到障礙物時,轎門馬上開啟。
6.對 重:與轎廂連接,作用是平衡轎廂的重量。
7.層 門:門上有門鎖開關,當層門關閉后,電梯才能啟動。
8.操縱箱:選用液晶觸摸式,獨立安裝,模擬乘客在轎廂內選層的信號輸入設備,包括:(1)數字顯層器:顯示轎廂所在樓層;(2)“1”、“2”、“3”選層按鈕;(3)關、門銨鈕;(4)方向指示燈:電梯運行方向指示;5)急停鎖;6)電源鎖
(注:甲方提供操作箱設備,乙方負責提供滿足相關功能接口的線纜)
9.減速器系統:由永磁感應器構成,提供轎廂停層位置信號
10.終端保護開關:感應器提供電梯運行終端信號,電梯超過它時,安全回路及電源被切斷,保證電梯不超出終端
11.總電源鎖:在電梯后壁某處方便開關電梯電源
12.急停開關:可獨立安裝墻面上,用于模擬電梯安全回路故障。


